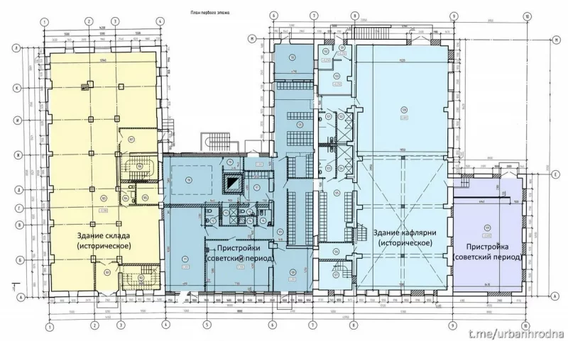
Галоўны вытворчы корпус кафлярняў князёў Друцкіх-Любецкіх (1895 г.) на вуліцы Чырвонаармейскай, 87 плануюць рэканструяваць пад шматфункцыянальны будынак. Кафлярні з’яўляюцца гісторыка-культурнай каштоўнасцю рэгіянальнага значэння. Будынкі шмат гадоў пуставалі і зараз знаходзяцца ў кепскім стане. Пачынаецца грамадскае абмеркаванне праекта.
Кафлярні месцяцца каля развязкі з Азёрскай шашой і вуліцы Магістральнай. Пасля рэканструкцыі там хочуць адкрыць спартыўныя, адміністрацыйныя, бытавыя і гандлёвыя памяшканні.
Пры рэканструкцыі мусяць захаваць:
- гістарычныя габарыты асноўных унутраных памяшканняў,
- каштоўныя элементы, архітэктурныя формы, індывідуальныя асаблівасці будынка.


Аўтэнтычныя элементы будынка мусяць максімальна захаваць і аднавіць (адрэстаўраваць). Будаўнічыя матэрыялы, якія будуць выкарыстоўваць, павінны быць сумяшчальнымі з матэрыяламі гісторыка-культурнай каштоўнасці.
Прылеглую тэрыторыю добраўпарадкуюць: створаць пешаходныя дарожкі, азеляненне, паркоўкі.
Пасля рэканструкцыі будаўнічы аб’ём (увесь аб’ём будынка ў гарызантальнай і вертыкальнай плоскасці) павялічыцца з 9 233,5 куб.м да 9 510,4 куб.м. Плошча будынка вырасце з 2018,1 кв.м да 2248,3 кв.м, плошча забудовы – з 1458,5 кв.м да 1531,7 кв.м. Агульная плошча памяшканняў складзе 2080,1 кв.м.



Кафлярні з’яўляюцца гісторыка-культурнай каштоўнасцю катэгорыі “3” (рэгіянальнага значэння) з 2016 года. Пры гэтым яны не ўваходзяць у межы гістарычнага цэнтра Гродна.
Пачынаецца грамадскае абмеркаванне
Грамадскае абмеркаванне праекта пройдзе з 16 па 30 красавіка 2024. Заўвагі і прапановы прымаюць пісьмова:
- Гродзенскі гарвыканкам (пл. Леніна, 2/1, 230023; [email protected]),
- Упраўленне будаўніцтва, архітэктуры і градабудаўніцтва (пл. Тызенгаўза, 3, 230023; [email protected]),
- у часопіс уліку наведвальнікаў экспазіцыі ва ўпраўленні архітэктуры.
Пабачыць праект можна будзе з 16 па 30 красавіка (8:00-17:00, пн-пт) у вестыбюлі ўпраўлення будаўніцтва і архітэктуры. Прэзентацыя праекта пройдзе 22 красавіка, 15.00 у будынку ўпраўлення архітэктуры на першым паверсе, кабінет 1.
Усе прапановы разгледзяць на гарадской архітэктурна-горадабудаўнічай нарадзе. Вынікі абмеркаванняў з’явяцца на сайце гарвыканкама да 14 траўня.
Гісторыя будынкаў і продажу
Гродзенскія майстэрні па вытворчасці кафлі князёў Друцкіх-Любецкіх (Станіславоўская кафлярня) пачалі працу ў 1895 годзе. Там выраблялі плітку для аднаўлення Гродна пасля пажару 1885 года. Да канца 1930-х гадоў там рабілі печкавую плітку і арнаменты, кафляныя лазні і ганчарныя вырабы на заказ. Савецкая ўлада нацыяналізавала кафлярню. Вытворчасць аднавілі пасля Другой сусветнай вайны. У 1950 годзе кафлярня ўвайшла ў склад камбіната будаўнічых матэрыялаў, разам з цагляным, чарапічным і вапнавым заводамі. Там выпускалі шэрую і глазураваныя плітку, кафлю, тэракоту. Рабілі кафлю для Сталінградскай ГЭС (цяпер Волжская ГЭС).





У 2015 годзе адзін з будынкаў завода купіла фірма «Леўта і С». У 2016 будынкі прызналі гісторыка-культурнай каштоўнасцю. Выкуплены будынак адрэстаўравалі, пакінуўшы арыгінальны фасад, надбудавалі яшчэ адзін паверх.

У 2019 астатнія будынкі намерваўся забраць і аднавіць Андрэй Разін з «Ласкового мая». Уладальнік асноўнай часткі завода — трэст «Гроднагарбуд» – збанкрутаваў. Участак у 0,21 га каля былой кафлярні прадавалі на аўкцыёне ў 2019 годзе за 29,2 тысяч рублёў. Паводле ўмоў там маглі пабудаваць гандлёва-выставачную пляцоўку для рамеснікаў.
Комплекс будынкаў выставілі на продаж у канцы жніўня 2021. Пакупнікоў не было, і аўкцыён не адбыўся. Кошт лота знізілі ўдвая, да 879 тыс. рублёў. У студзені 2022 года на Чырвонаармейскай прапаноўвалі купіць будынак — частку Станіславаўскіх майстэрняў – з участкам за пачатковую цану ў 351,6 тыс. рублёў (мінімальны кошт быў 175,8 тыс. рублёў). Плошчу зямлі да продажу тады вызначылі ў 0,4 га. У сакавіку 2022 участак выставілі на таргі ўжо за 47,3 тыс. рублёў. Пад будаўніцтва можна было арандаваць надзел плошчай 0,19 га.
Чытайце таксама: Пяць слоў, якія вырашылі лёс, або чаму неабходна хадзіць на грамадскія абмеркаванні, каб захаваць Гродна




