На вуліцы Магістральнай каля паліклінікі хочуць збудаваць 10-павярховы шматкватэрны жылы дом з памяшканнямі для мыцця лапаў гадаванцам і пакоямі маці і дзіцяці на першым паверсе. Грамадскае абмеркаванне праекта пачнецца 22 лютага.
Мяркуючы па ілюстрацыях да праекта, у каларыстыцы, размяшчэнні вокнаў і сілуэце будынка архітэктары спрабавалі пераасэнсаваць архітэктурную спадчыну Гродзенскай вобласці: Мірскі замак, царкву ў Мураванцы, Стары замак у Гродне, заўважыў канал Urban Hrodna.

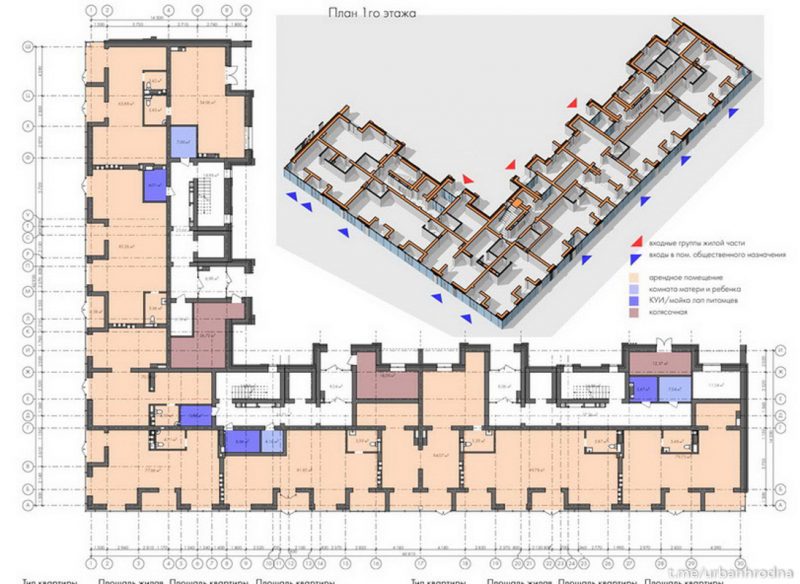
На першым паверсе размесцяць:
- офісы;
- памяшканне таварыства ўласнікаў;
- вазковыя;
- памяшканні для мыйкі лапаў, для прыборачнага інвентара;
- пакоі маці і дзіцяці;
- электрашчытавую.
Вонкавыя сцены збудуюць з цаглянага трохслаёвага мура з абліцоўваннем клінкернай цэглай, цаглянага мура з уцяпленнем мінералаватных плітамі і вентыляванымі фасадамі з абліцоўваннем кампазітнымі панэлямі, і цаглянага мура з уцяпленнем лёгкай тынкавай сістэмай уцяплення.
У будынку будзе 135 кватэр: па 45 адна-, двух- і трохпакаёвых. Агульная плошча кватэр складзе 6223,56 кв.м. Вакол будынка уладкуюць плоскасныя паркоўкі агулам на 138 машына-месцаў.
У двары прадугледжаны дзіцячая пляцоўка, велапаркоўка, смеццевая пляцоўка. Свабодную ад забудовы тэрыторыю азеляняць газонамі і кустамі. Уздоўж вулічнай сеткі ўладкуюць вела-пешаходныя сцежкі.
Участак будаўніцтва абмежаваны:
- з поўначы — Гродзенскім абласным клінічным цэнтрам “Псіхіятрыя-наркалогія», гарадской паліклінікай № 5;
- з усходу — вытворчых, камунальна-складскіх, сельскагаспадарчых аб’ектаў, вул. Абухава;
- з поўдня — праезда, адміністрацыйнага будынка на Магістральнай, 8;
- з захаду — вул. Магістральнай.
Дзе можна паглядзець праект і калі пройдуць абмеркаванні
Грамадскае абмеркаванне пройдзе з 22 лютага па 18 сакавіка. Прапаноўвы і заўвагі з пазн. «Грамадскае абмеркаванне» дасылаць:
- у Гродзенскі гарвыканкам (пл. Леніна, 2/1, 230023, Гродна // [email protected]),
- ва Упраўленне будаўніцтва, архітэктуры і градабудаўніцтва (пл. Тызенгаўза, 3, 230023, Гродна // [email protected]),
- праз Дзяржаўную адзіную Рэспубліканскую сістэму зваротаў https://обращения.бел.
Паглядзець праект можна будзе з 22 лютага па 8 сакавіка (8:00-17:00, пн-пт) у вестыбюлі ўпраўлення будаўніцтва, архітэктуры і градабудаўніцтва на пл. Тызенгаўза, 3.
Прэзентацыя праекта для гараджан пройдзе 2 сакавіка, у 15.00 у будынку Упраўлення будаўніцтва, архітэктуры і градабудаўніцтва на першым паверсе ў кабінеце №1.
Як забудоўваюць Магістральную
Рашэнне аб будаўніцтве жылога квартала на Магістральнай прынялі ў 2020 годзе. Праект прадугледжвае там дзевяць шматкватэрных дамоў. Пяць буйнапанэльных будынкаў ужо ўведзены ў эксплуатацыю. Усяго ў мікрараёне на Магістральнай запланавана будаўніцтва 46 тысяч кв. м жылля, з якіх 30 тысяч ужо здалі.
Участак каля каля 0,74 га паміж будынкамі «Гроднааблгаза» і паркоўкай каля гарадской паліклінікі №5 прадавалі летам 2022 года за пачатковы кошт 87 960 рублёў. Па ўмовах, забудоўшчыка абавязвалі прадугледзець мантаж шумаахоўнай экрана, каб абараніць жыхароў ад руху аўто на Магістральнай, пісаў «Вечерний Гродно».
Чытайце таксама:
- У Зарыцы збудуюць новы квартал тыпавых дамоў
- Чыноўнікі не пачулі гродзенцаў: «Вішнявец-4» будуць ушчыльняць. Вось чаму жыхары супраць
- Парк з фортам, школа з басейнам і шматпавярховыя стаянкі. Што будзе ў наступных кварталах мікрараёна Грандзічы









