На месте теплицы от «Зеленого мира» на Антонова собираются построить полноценное здание-оранжерею для продажи широкого ассортимента растений, пишет Telegram-канал Urban Hrodna.
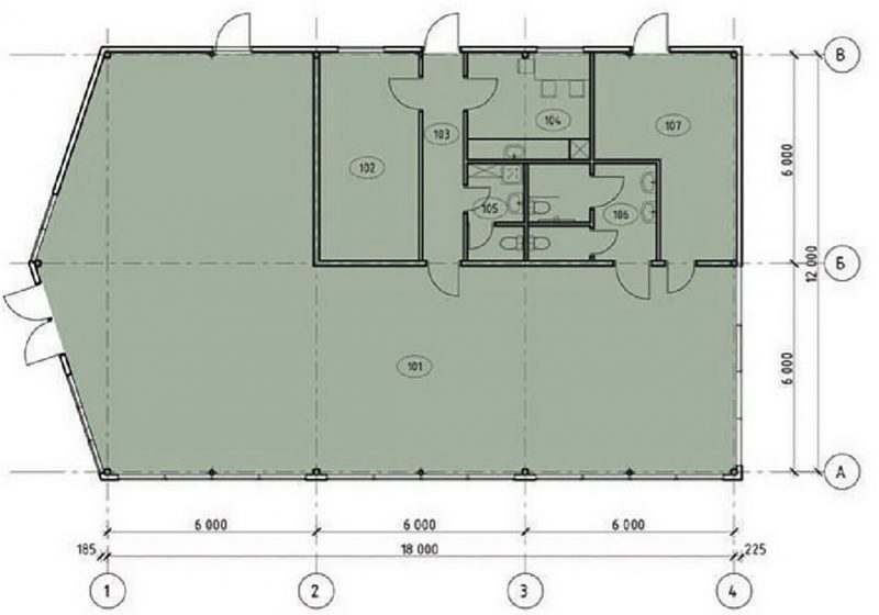
Новое здание будет одноэтажным, ломаной формы в плане с габаритными размерами 18х12 м. Общая площадь застройки — 233 кв. м. Существующие здания магазина сносить не будут. Проект предусматривает функциональное зонирование участка в увязке с соседней застройкой, с учетом пешеходных связей и проездов для обслуживания объекта.
Основную часть здания займет торгово-выставочный зал с зелеными растениями площадью в 158 кв. м. Он будет в виде остекленной оранжереи. В остальной части разместят вспомогательные помещения: кабинет, санузлы, кладовая, комната приема пищи.
Каркас здания выполнен из сборных металлоконструкций. Наружные стены и кровля главных фасадов с северной, южной и западной стороны будут витражными, стены дворового фасада — из трехслойной сэндвич-панели с декоративными вставками под дерево из керамогранита с устройством вентилируемого фасада. Кровля будет двускатной, без чердака.
Основной подъезд к объекту предусмотрен со стороны автомобильной парковки вдоль ул. Антонова. Перед главным входом запроектирована гостевая парковка, одно место выделено для физически ослабленных лиц. Основной вход для посетителей будет с северо-западной стороны участка. Тротуары и парковку выложат плиткой, обустроят газоны, установят урны и скамейки.
Где и когда можно обсудить проект
Общественные обсуждения проекта с гродненцами пройдут с 25 июня по 19 июля. Замечания и предложения принимают с 25 июня по 9 июля в письменной или электронной форме с пометкой «общественное обсуждение»:
- Гродненский городской исполнительный комитет (пл. Ленина, 2/1, 230023, г. Гродно, e-mail: [email protected]);
- управление архитектуры и градостроительства горисполкома (пл. Тызенгауза, 3, 230023, г. Гродно, e-mail: [email protected]);
- сервис «Электронные обращения» на официальном сайте горисполкома.
Проект можно будет увидеть с 25 июня по 9 июля в вестибюле здания управления строительства, архитектуры и градостроительства горисполкома (8.00-13.00, 14.00-17.00 по будням).
Презентацию проведут 6 июля в 15.00 в каб. 1 здания управления строительства, архитектуры и градостроительства.
Кто заказчик
«Зеленый мир» принадлежит фермерскому хозяйству «Зеленый горизонт» (агрогородок Ратичи под Гродно). В 2020 году этот участок выставили на торги, так как арендатор не уплатил вовремя аренду городу, писал «Вечерний Гродно». Землю выкупили владельцы «Зеленого горизонта». По условиям торгов там должны были построить здание.
Читайте также:











